Ladepark NDH 2.jpg

Ladepark Nordhausen

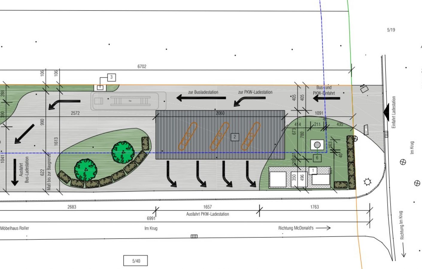
Neubau eines Ladeparks für Elektrofahrzeuge in der Gemarkung Bielen.

Aufgaben:

- Entwurfs- und Genehmigungsplanung

- Ausschreibung Tiefbauarbeiten

Ausführungszeitraum: 2018
Auftraggeber: EPGM Ladepark GmbH
Gesamtinvestition: < 300.000 EUR