
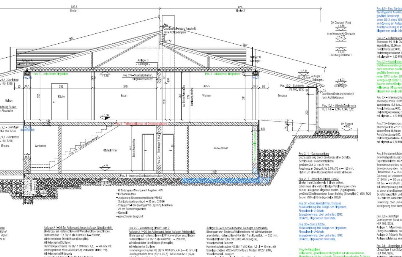
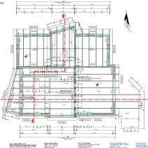
Tragwerksplanung für ein EFH in Nordhausen (2)
Wir führten 2009 die komplette Tragwerksplanung für ein Einfamilienhaus in Nordhausen durch. Architekt: R. Schunke (FAI)
Ausführungszeitraum: 2009
Auftraggeber: Privat
Gesamtinvestition: -/-
Auftraggeber: Privat
Gesamtinvestition: -/-


zu Projekten | Startseite

